ІПОТЕКА: нежитлова будівля в літ. "Б-1" загальною площею 97,1 кв.м., що знаходиться за адресою: Харківська обл., м. Дергачі, вул. 23 Серпня, 6-Д

Стан аукціона:
торги відбулись
Протокол торгів:
Номер лоту:
309286
Дата проведення аукціону:
16-11-2018 09:00
Дата закінчення торгів:
16-11-2018 18:00
Дата закінчення подання заявок:
16-11-2018 08:00
Стартова ціна:
223 700.00 грн.
Гарантійний внесок:
11 185.00 грн.
Крок аукціону:
4 474.00 грн.
Область:
Харківська обл.
Місцезнаходження майна:
Харківська обл., Дергачівський район, м. Дергачі, вул. 23 Серпня, 6-Д
Дата публікації:
17-10-2018 14:04
Предмет іпотеки
Так

Додатково:

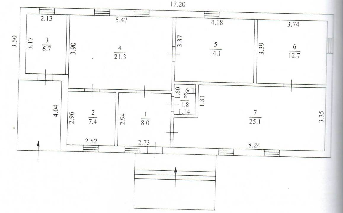
Приміщення будівлі в господарській діяльності не використовуються (функціональне призначення - пункт штучного запліднення). Будинок одноповерховий. Приміщення знаходяться в задовільному стані, матеріал зовнішніх стін - цегла, покрівля шифер, перекриття з/бетон, фундамент з/бетон, підлога лінолеум, плитка, вікна МПВ. Ганок - поитка з зонтом. Огорожа та ворота металеві. Вимощення - бетонні плити. Рік забудови - 1974. Інженерні комунікації - електрика, водопровід.  Висота приміщень - 3,35 м.

Будівля складається з: коридор - 8,0 кв.м., основна - 7,4 кв.м., котельня - 6,7 кв.м., основна - 21,3 кв.м., основна - 14,1 кв.м., допоміжна -12,7 кв.м., основна - 25,1 кв.м., вбиральня - 1,8 кв.м.

Реєстраційний номер лота
309286
Категорія
Будівлі
Відомості про обтяження майна:

арешт нерухомого майна від 30.03.2018 №25519247 на підставі постанови про арешт майна боржника від 30.03.2018 ВП56083888 ПВ Бабенко Д.А., іпотека від16.05.2014 №11481345 на підставі договору позики 836 від 28.04.2014 ПН Коссе Л.М.

Порядок ознайомлення з майном:

ознайомлення у зберігача

Коритцев Глеб Ігоревич, тел. 068-248-78-12


Порядок сплати внеску:
Сплата гарантійного внеску для участі в електронних торгах здійснюється на рахунок Організатора за реквізитами, які, зокрема, вказані в квитанції, що автоматично формуються Системою в особистому кабінеті учасника, при подачі заявки на участь у торгах по певному лоту. Підтвердження щодо надходження суми гарантійного внеску на рахунок Організатора від обслуговуючого банку повинно надійти Організатору не пізніше ніж за одну годину до початку торгів.
Порядок сплати за майно:
Розрахунок за придбане на електронних торгах майно здійснюється переможцем електронних торгів за реквізитами, які вказані в Протоколі електронних торгів, що автоматично формується системою після закінчення електронних торгів.
Порядок оформлення участі у торгах:
Для участі в електронних торгах, необхідно:
1.Зареєструватися в системі «СЕТАМ»
2. Подати заявку на участь в електронних торгах з особистого кабінету учасника торгів
3. Сплатити гарантійний внесок у розмірі 5% від стартової ціни лота на рахунок Організатора торгів.
Повний текст правил проведення торгів доступний за посиланням
Організатор торгів:
Державне підприємство «СЕТАМ», контактний телефон «0-800-335-754», електронна адреса «service@setam.net.ua»
Відділення продавця:
Бабенко Дмитро Анатолійович (ПВ), виконавчий округ - Харківська обл., номер посвідчення 0105 - зупинена діяльність